Pripravujeme na predaj - rozostavaný rodinný dom/chalupu na Kysuciach
Exkluzívne

Info v RK

Detail ponuky

Ponuka číslo: ZA015730

Popis

Trojpodlažný zrubový dom s garážou a potenciálom na rekreačné bývanie – dokončite si ho podľa seba vrátane wellness

Predstavte si miesto, kde sa spoja vôňa dreva, pokoj hôr a komfort moderného bývania. Ponúkame Vám výnimočný trojpodlažný dom v štádiu uzatvorenej hrubej stavby – ideálny projekt pre tých, ktorí hľadajú priestor na život aj oddych v srdci prírody, s výbornou dostupnosťou do známeho lyžiarskeho strediska.

Dom ponúka kombináciu kvalitnej murovanéj základne a zrubovej nadstavby, ktorá vytvára jedinečný rustikálny charakter. Je situovaný na rovinatom pozemku s kompletnými inžinierskymi sieťami. Vďaka svojej polohe je vhodný nielen na trvalé bývanie, ale aj ako víkendová chalupa či investícia na prenájom.

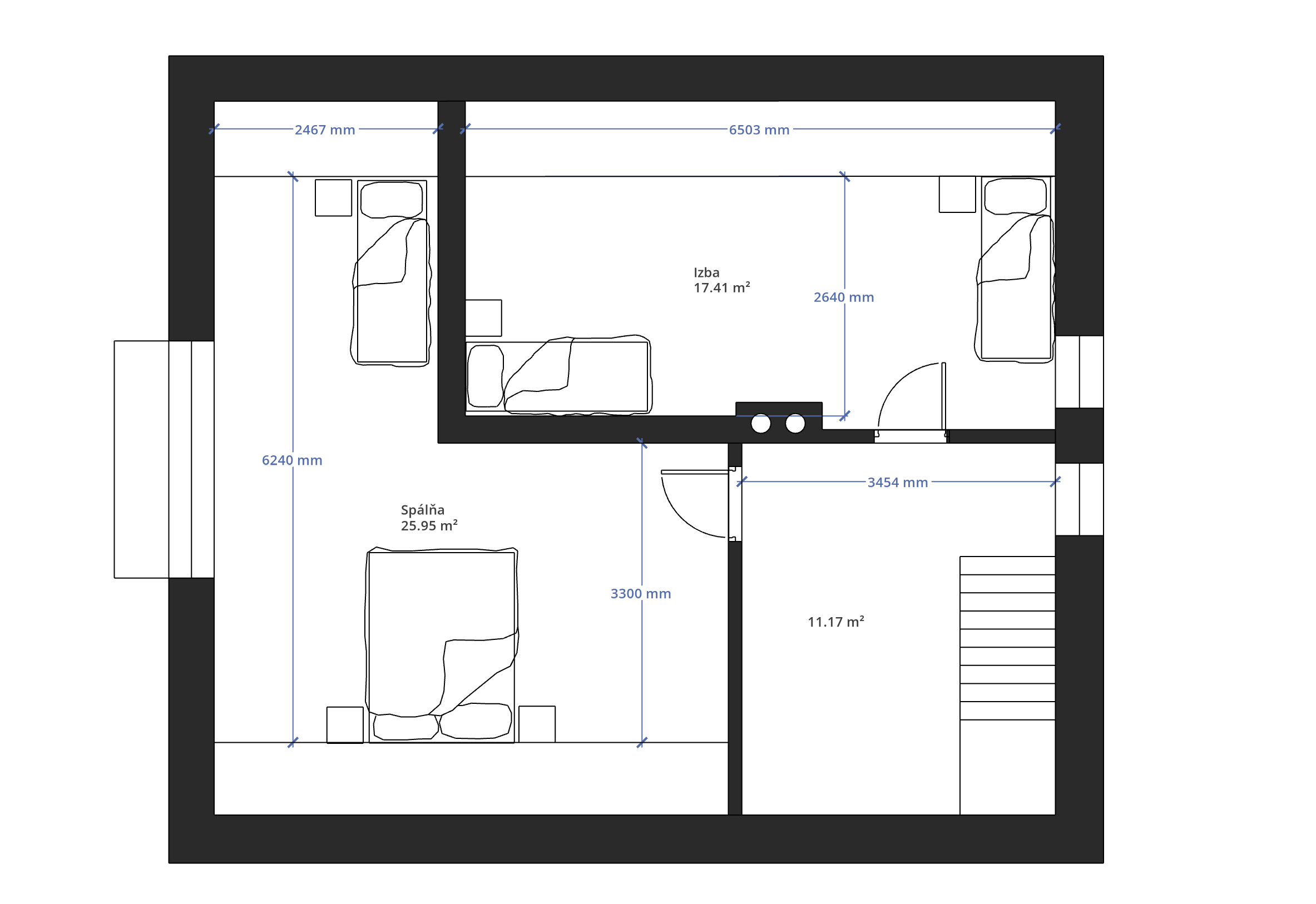
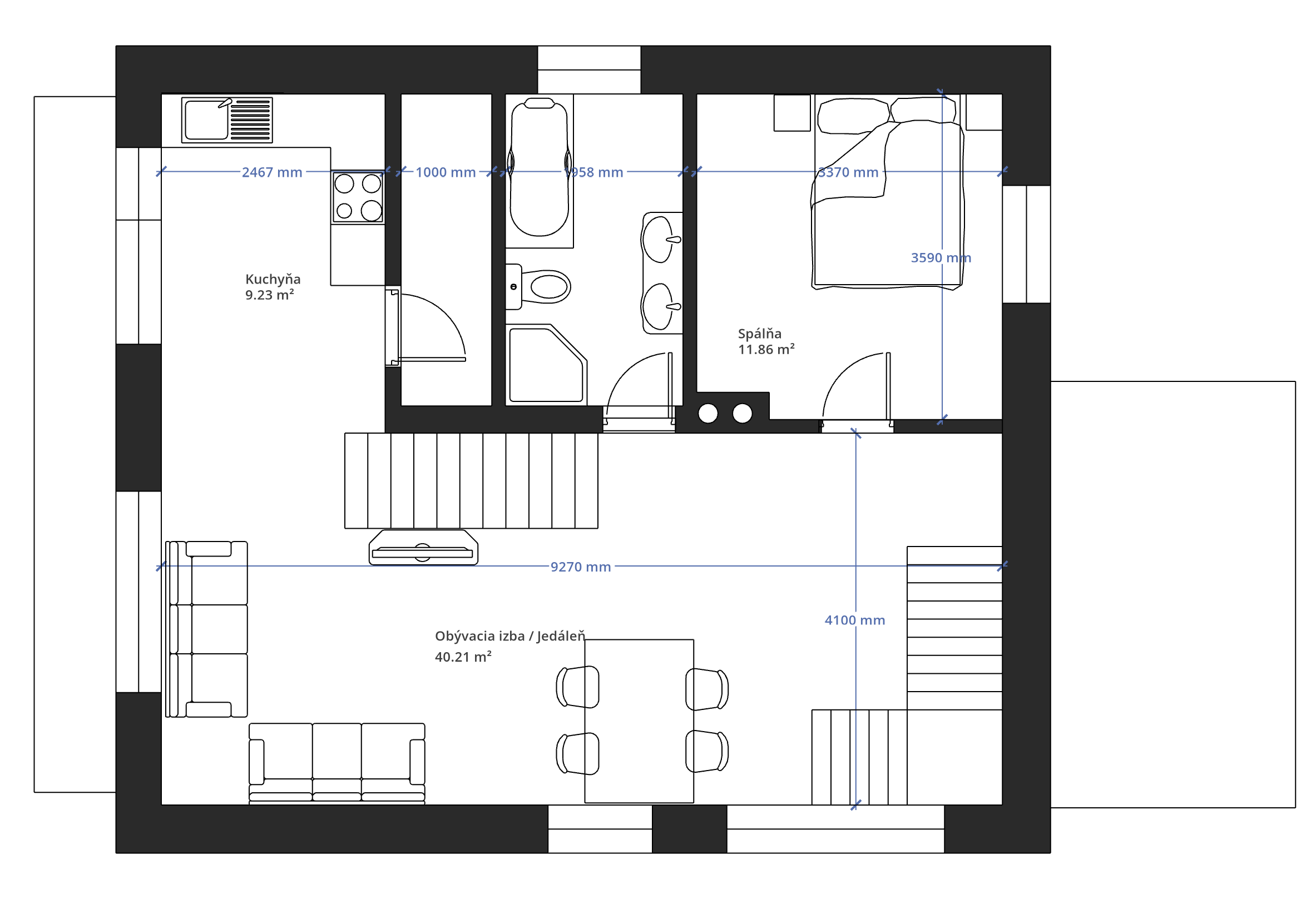
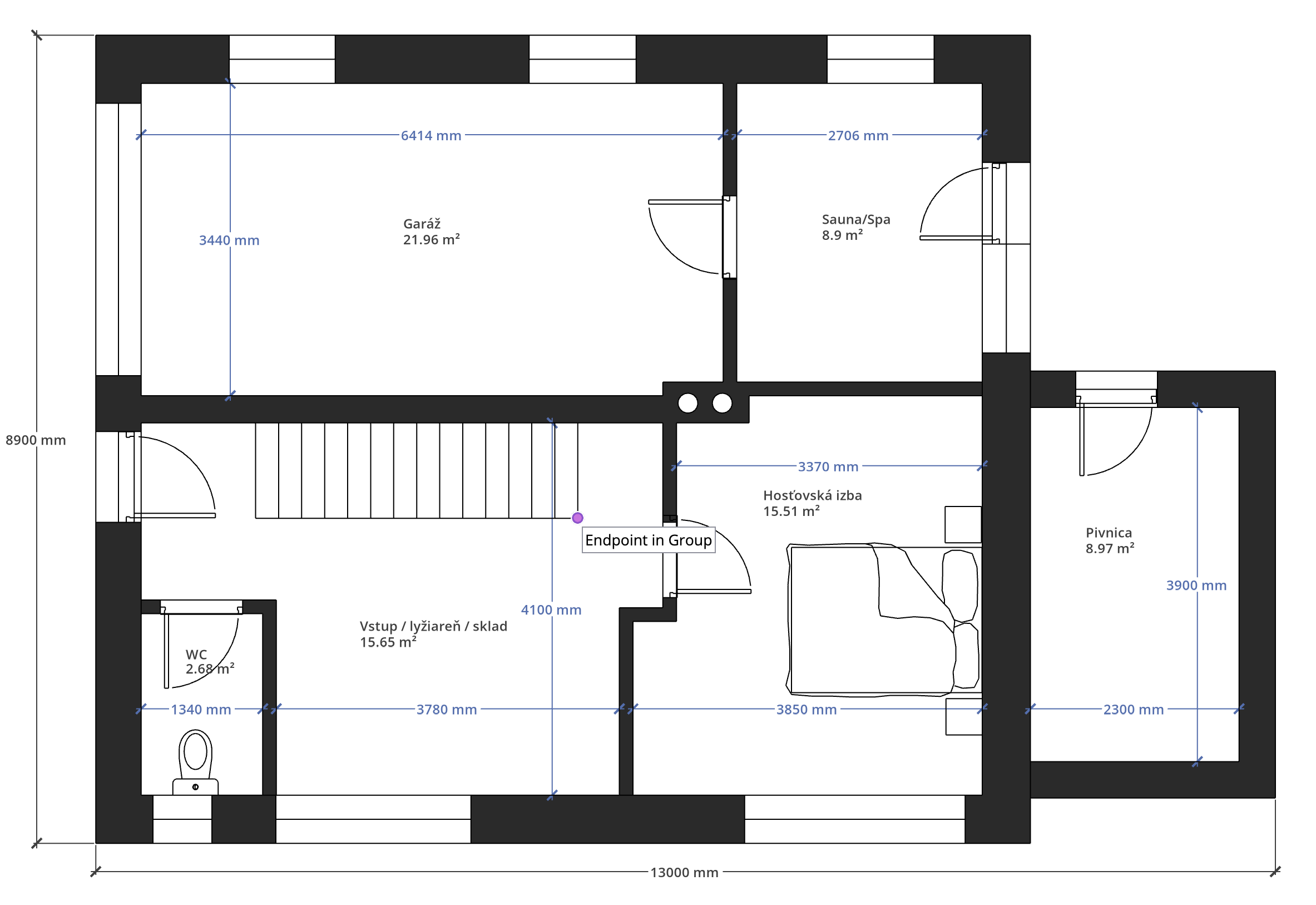
Dispozičné riešenie:

  • Prízemie (73 m²): garáž, vstupná hala, lyžiareň, technická miestnosť, samostatné WC, hosťovská izba alebo apartmán, miestnosť predpripravená pre wellness so saunou

  • Poschodie (73 m²): otvorená denná zóna – kuchyňa, jedáleň, obývačka so schodiskom, kúpeľňa a spálňa

  • Podkrovie (55 m²): dve samostatné izby a priestor pre druhú kúpeľňu

Dom je pripravený na dokončenie interiéru – novému majiteľovi ponúka slobodu a kreativitu dotvoriť si bývanie podľa vlastných predstáv, vkusu a potrieb.

Zaujímavosti v blízkom okolí:

  • Potraviny, reštaurácie, športové a voľnočasové možnosti do niekoľkých minút autom

  • Výborná dostupnosť k známemu lyžiarskemu stredisku

  • Tichá lokalita s prírodným rámcom, ideálna na rekreáciu aj celoročné bývanie

Presnú lokalitu nehnuteľnosti radi poskytneme na vyžiadanie.

Ak Vás táto ponuka zaujala a cítite, že by mohla byť základom Vášho vysnívaného domova alebo víkendového útočiska, neváhajte ma kontaktovať. Rád Vám poskytnem bližšie informácie a odpoviem na všetky Vaše otázky.

Stav nehnuteľnosti - Vo výstavbe. Nájdete na stránke realityMGM.sk pod ID ZA015730. Call centrum tel: 0910 86 11 86.



Typ nehnuteľnosti Domy
Inzertná kategória Predaj
Stav nehnuteľnosti Vo výstavbe
Celková plocha bytu bez logie 601 m2
Výmera pozemkov 601 m2
Obec Čadca

PROFIROL

od

  • Retiazkové žaluzie, závesy, záclony a rolety
  • Záruka 4 roky
  • Vrátane montáže

Biela technika

od 955.25€

  • Chladnička, práčka
  • Vstavaná rúra, odsávaČ pár
  • Varná doska, mikrovlnná rúra

Komandor

od 300€

  • Kuchynská linka, vstavané skrine
  • Obývacia izba
  • Zariadenie celého bytu

Architekt LECTUS

Podľa dohody

  • Interiérový dizajn
  • Nábytok na mieru
  • Realizácie na kľúč

Sťahovanie TRIV

od 250€

  • Sťahovanie
  • Balenie
  • Doprava

Keramika SOUKUP

od 500€

  • Kúpeľne, obklady
  • Dlažby, sanita
  • Podlahy, terasy, balkóny

Finvia Group s.r.o.

Služby zdarma

  • Zabezpečíme Vaše bývanie
  • Ochránime Váš majetok
  • Zabezpečíme Váš príjem

Štúdio spánku a pohodlia

Zľava až do 30%

  • Sedačky na mieru
  • Postele a matrace
  • Unikátny dizajn

Podlahy a dvere Eko Interiér

Zľava 8%

  • Laminát, vinil, drevo
  • Interiérove dvere
  • Realizácie na kľúč


Okres Čadca je okres v Žilinskom kraji na Slovensku. Má rozlohu 760,62 km², žije tu 89 952 obyvateľov a priemerná hustota zaľudnenia je 118 obyvateľov na km² (údaje k 31. 12. 2019). Správne sídlo okresu je mesto Čadca.

Okres leží v severnej časti regiónu Kysuce. Na severe hraničí s Poľskom a na západe s Českom. Hlavným tokom je rieka Kysuca. Do okresu Čadca patrí 23 obcí, z toho tri so štatútom mesta (Čadca, Turzovka a Krásno nad Kysucou). Väčšina inštitúcii (úradov) a škôl okresu sídli v Čadci, no niektoré školy otvorili svoje pobočky aj v iných mestách. V obciach Skalité, Čierne, Svrčinovec a Oščadnica sa hovorí aj goralským alebo poľským nárečím.

Zdroj: wikipedia


Žilinský kraj

Demografia

K 21. máju 2011, bolo na území Žilinského kraja 144 948 domov, t.j. 13,5 % z celkového počtu domov v Slovenskej republike (z toho 120 788 obývaných, t.j. 83,3 %). Žilinský kraj bol v počte domov na druhom mieste za Nitrianskym krajom (podiel 16,2 %). Spomedzi okresov kraja najvyšší počet domov sa nachádzal v Žiline 20,3 % a najmenej v Turčianskych Tepliciach 3,3 %. Obývaných domov bolo v okrese Žilina 21,1 % z úhrnu za kraj a v Turčianskych Tepliciach 3,2 %.

Geologická charakteristika

Celé toto hornaté územie spadá z geomorfologického hľadiska do Západných Karpát. Horské masívy v tejto lokalite sa sformovali pomerne nedávno, v paleogéne. Zásluhou pohybov príkrovov sa vyzdvihovali pôvodné morské sedimenty, z ktorých postupne vznikli impozantné údolia. Rieka Váh územie nápadne rozdeľuje na dve časti:

  • severná zahŕňa pohoria: Tatry, Skorušinské vrchy, Oravské Beskydy, Oravská Magura, Oravská vrchovina, Chočské vrchy, Krivánska Fatra, Kysucké Beskydy, Kysucká vrchovina a Javorníky
  • južná zahŕňa pohoria: Nízke Tatry, Veľká Fatra, Lúčanská Fatra a Strážovské vrchy

Dejiny

Po páde Veľkomoravskej ríše v roku 907, ku ktorej územie patrilo, bolo od 12. storočia prakticky až do roku 1918 súčasťou uhorského kráľovstva. V 13. storočí na obranu proti mongolským nájazdom bola vybudovaná sieť hradov (Hričov, Považský, Košecký, Lietavský, Strečniansky). 16. storočie znamenalo pre miestnych obyvateľov chudobu a strach, hlavne pred tureckou okupáciou a živelnými pohromami. Ku koncu 19. storočia tu bola zavedená železnica a v údolí Váhu začal prekvitať priemysel.


Stručná história Slovenska

Prvý štátny útvar Slovanov na území dnešného Slovenska bola Samova ríša (7. storočie), neskôr Nitrianske kniežatstvo (začiatok 9. storočia), ktorého spojením s Moravským kniežatstvom vznikla v roku 833 Veľká Morava. Od polovice 10. do konca 11. storočia sa územie Slovenska postupne začlenilo do Uhorska, ktoré sa v roku 1526 stalo súčasťou Rakúskej monarchie (Habsburskej monarchie), od roku 1867 nazývanej Rakúsko-Uhorsko. Po rozpade Rakúsko-Uhorska v roku 1918 bolo Slovensko súčasťou Česko-Slovenska až do roku 1993 (okrem obdobia samostatnosti počas vojnovej Slovenskej republiky). 1. januára 1993 vznikla rozdelením tohto štátneho útvaru samostatná Slovenská republika.

Slovenská republika je parlamentnou demokraciou, štátnym jazykom je slovenčina. Od 1. mája 2004 je Slovensko členom Európskej únie, od 21. decembra 2007 je členom Schengenského priestoru. Od 1. januára 2009 je 16. členom Európskej menovej únie – eurozóny a oficiálnou menou sa stalo euro, ktoré vystriedalo slovenskú korunu.